物件詳細
| 団地名 | 神居 | ||
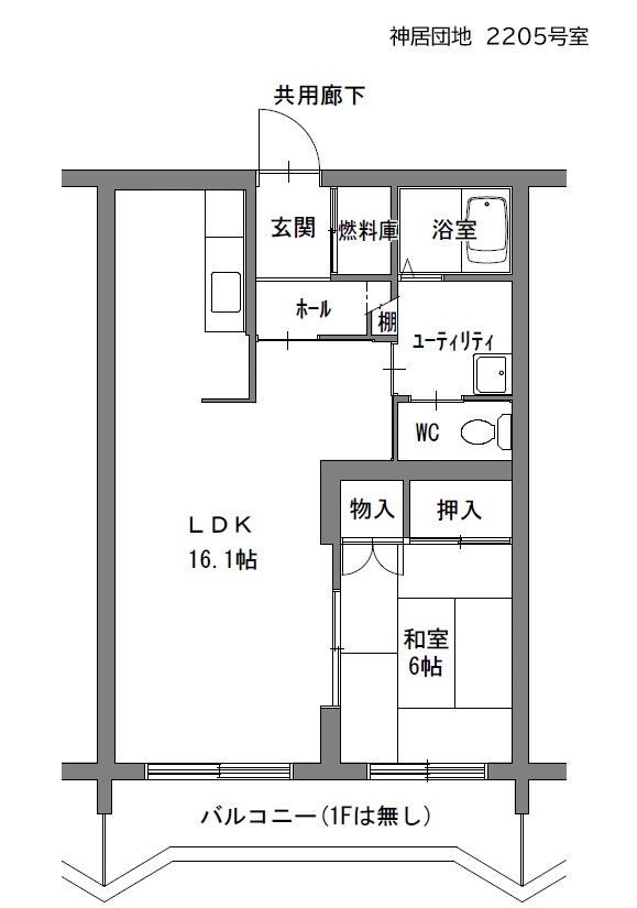
| 所在地 | 神居4条11丁目 | ||
| 家賃 | 15,500~30,500円 | 号室 | 2205 |
| 建設年度 | H9年 | ||
| 間取り | 1LDK | 設備 | 風呂付き、エレベータ有り、緊急通報システム、BSアンテナ、FF式ストーブ設置可 |
| 備考 |
設備について 「風呂付き」・・・ユニットバスがついていますが、ガス給湯器は付いていません(リース制度あり、買取りも可)。 暖房について 「FF」・・・FF式灯油ストーブ設置可 |
||
