物件詳細


団地名 | 神居 | ||
所在地 | 神居5条11丁目 | ||
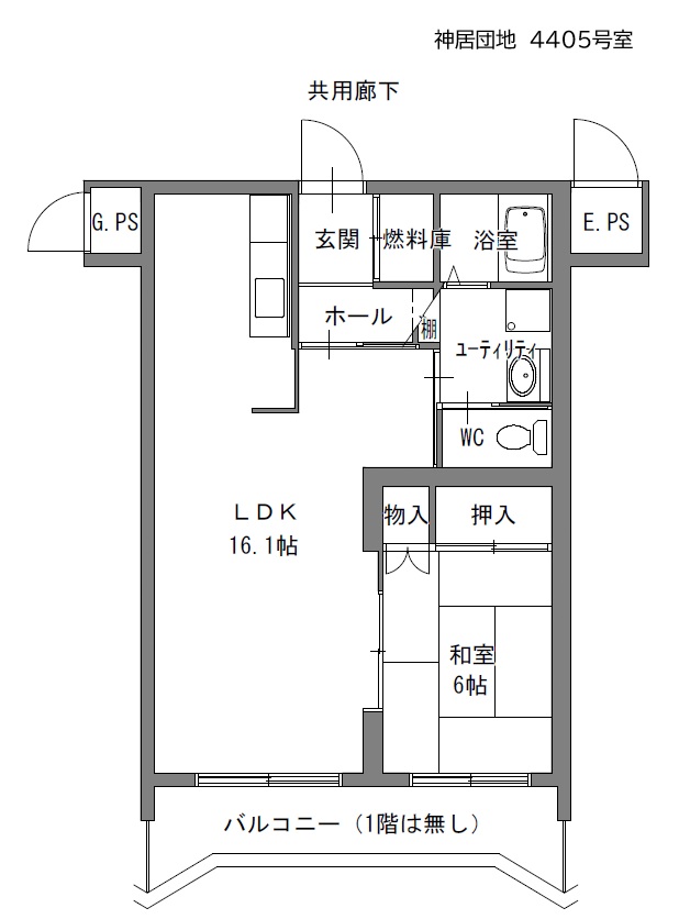
家賃 | 15,900~31,200円 | 号室 | 4405 |
建設年度 | H11年 | ||
間取り | 1LDK | 設備 | 風呂付き、エレベータ有り、緊急通報システム、BSアンテナ、FF式ストーブ設置可 |
備考 |
設備について 「風呂付き」・・・ユニットバスがついていますが、ガス給湯器は付いていません(リース制度あり、買取りも可)。 暖房について 「FF」・・・FF式灯油ストーブ設置可 |