物件詳細


団地名 | 神居 | ||
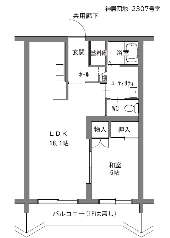
所在地 | 神居4条11丁目 | ||
家賃 | 15,700~31,000円 | 号室 | 2307 |
建設年度 | H9年 | ||
間取り | 1LDK | 設備 | 風呂付き、エレベータ有り、緊急通報システム、BSアンテナ、FF式ストーブ設置可 |
備考 |
設備について 「風呂付き」・・・ユニットバスがついていますが、ガス給湯器は付いていません(リース制度あり、買取りも可)。 暖房について 「FF」・・・FF式灯油ストーブ設置可 |